logo-print
T (0186) 61 55 00

Duiker GR7 met cementvoeg

De GR7 ECODUIKERS zijn duikers uitgevoerd met ecovoorzieningen. Naast de functie als waterdoorlaat kan door de duiker het kleinwild ongestoord een drukke verkeersweg of spoorbaan passeren. GR7 Ecoduikers worden veelal uitgevoerd met een verbinding door middel van een cementvoeg om zo de ecovoorziening op niveau te kunnen houden.

Een Eco-duiker wordt opgebouwd uit duikerelementen met 1 of 2 bordessen (=Eco-voorziening) ten behoeve van kleinwild. Naast de functie als waterdoorlaat kan door de duiker het kleinwild ongestoord een drukke verkeersweg of spoorbaan passeren.


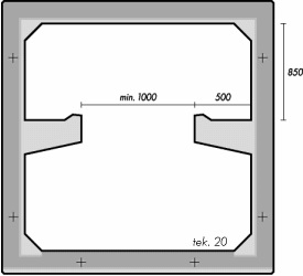
Afmetingen
Afhankelijk van de inwendige duikerbreedte worden in de duiker 1 of 2 zogenaamde Eco-bordessen meegestort. Bij toepassing van 1 Eco-bordes bedraagt de minimale duikerbreedte 1.50 m en bij 2 bordessen dient de duikerbreedte tenminste 2.00 m te zijn. Een standaard- Eco-bordes heeft een breedte van 0.50 m en de bovenzijde van het bordes wordt op 0.85 m onder het dek aangebracht.





 
Voordelen
  • goedkope aanleg van een wildpassage in een waterdoorlaat;
  • bordes vormt één geheel met duiker (gelijktijdig meegestort);
  • combinatie van waterdoorlaat en onderdoorgang ten behoeve van kleinwild;
  • keuzemogelijkheid van de voegconstructie;
  • afhankelijk van belasting, ondergrond en/of fundatie koppel- of naspanmogelijkheden.